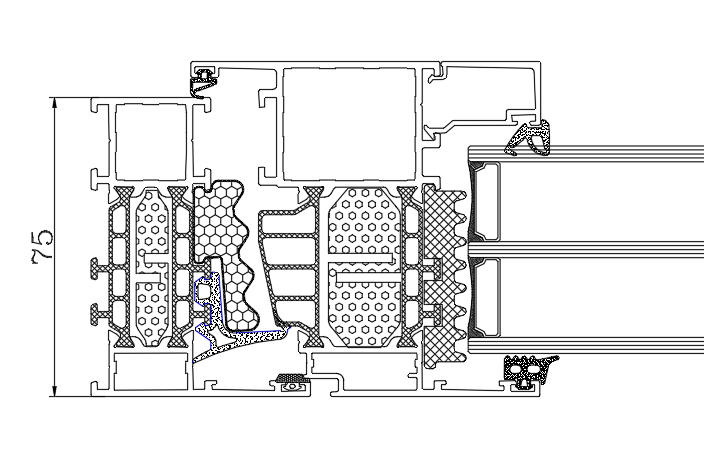
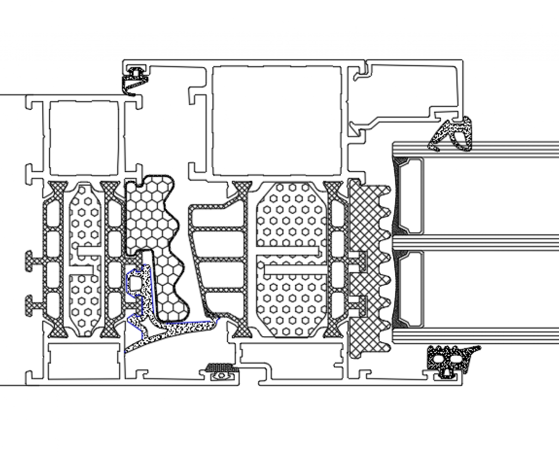
Aliplast GENESIS 75
Aliplast GENESIS 75 – šilta moderni aliuminioistema. Sistema skirta energiją taupantiems ir pasyviems pastatams langų, durų ir vitrinų konstrukcijoms projektuoti. Be standartinės centrinės tarpinės panaudojus papildomą šiluminę tarpinę, galima išgauti labai aukštą langų sandarumą. Ši sistema taip pat leidžia sudaryti 90 laipsnių kampą ir kampo kombinaciją, kad būtų pasiektas įspūdingas stiklo paviršius.
|
TECHNINIAI DUOMENYS |
||||||||
| rijų kamerų sistema GENESIS 75 | ||||||||
| Konstrukcijos gylis: Staktų gylis - 75 mm, Langų varčių gylis - 84 mm. | ||||||||
| Užpildo gylis: vitrina 1-56 mm, langas 9-65 mm. | ||||||||
| Apkaustai: Fapim, Savio, Iseo, Cisa, Geze, KFV, GU, Maco, Winkhaus | ||||||||
| Tarpinės: sintetinis kaučiukas EPDM pagal DIN 7863 ir ISO 3302-1 E2 standartą | ||||||||
| Užpildai: įvairaus tipo ir storio stiklai ar stiklo paketai, nepermatomos kompozitinės panelės, polikarbonatas. | ||||||||
| Paviršiaus apdaila: : anodavimas, dažymas pagal RAL paletę, „ALIPLAST Wood Colour Effect“ paletę sudaro 12 į medieną panašių spalvų | ||||||||
| Rėmo šilumos perdavimo koeficientas – Uf nuo 0,84 W/m2K (šilumos koficientas priklauso nuo gaminio matmenų, gaminių derinimo ir išpildymo). |
