PE 78 PROCURAL
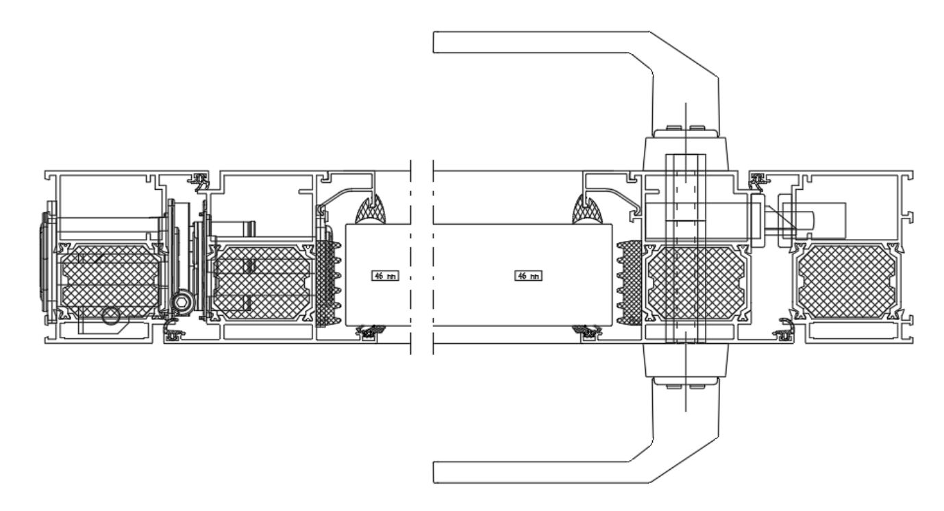
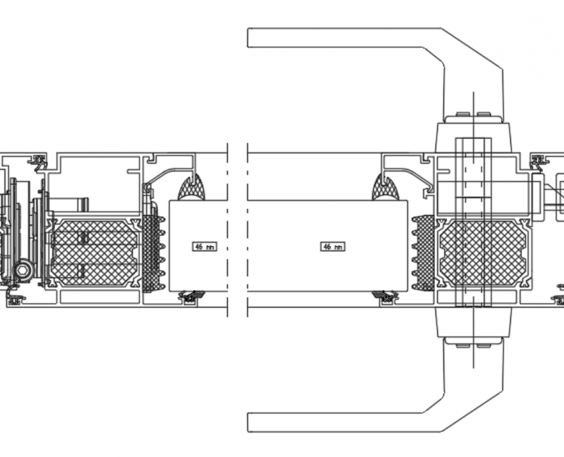
PE 78 PROCURAL - trijų kamerų, šilta aliuminio profilių sistema, skirta lauko konstrukcijoms: langams ir durims, didelių gabaritų. Lengvai jungiama su kitomis PROCURAL sistemomis. Turi galimybę: suvienodinti langų varčios ir staktos išorines plokštumas ir lenkti profilius. Galimybė naudoti šiuolaikines dviejų komponentų EPDM tarpines puikiai izoliuojančias šilumą. Estetinė išvaizda ir lengvas montavimas. Šioje sistemoje galima naudoti įvarių gamintojų durų vyrius, bei furnitūrą.
PE 78HI yra sistemos PE 78 modernizuotas variantas, jos konstrukcija panaši. Papildomas pranašumas – aukštas izoliacijos lygis, pasiektas naudojant specialius izoliacinius įdėklus.
PE 78N HI versija su uždara stiklo kamera - Uf vertė - 0,9 W/m2K
Šilčiausiame PE 78N HI+ variante su specialiais aerogelio izoliaciniais įdėklais profilio kamerose pasiekiama Uf 0,7 W/m2K vertė.
Trijų kamerų sistema PROCURAL PE78
| Konstrukcijos gylis | Durų staktų gylis - 78 mm. Langų- staktų gylis - 78 mm, Langų varčių gylis - 86 mm |
| Užpildo gylis | 23 – 61 mm |
| Apkaustai | Fapim, Savio, Iseo, Cisa, Geze, KFV, GU, Maco, Winkhaus |
| Tarpinės | sintetinis kaučiukas EPDM pagal DIN 7863 ir ISO 3302-1 E2 standartą |
| Užpildai | įvairaus tipo ir storio stiklai ar stiklo paketai, nepermatomos kompozitinės panelės, polikarbonatas |
| Paviršiaus apdaila | dažymas pagal RAL spalvų palete, anodavimas |
| Rėmo šilumos perdavimo koeficientas | Uf 1,2 – 1,9 W/m²K (šilumos laidumo koeficientas (rėmo) Uf = 1,2 – 1,9 W/m2K, 1,7-1,9 (durys) (šilumos koficientas priklauso nuo gaminio matmenų). |
| Sujungimas | sujungimo detalės, kampainiai, sraigtai, varžtai, tarpinės iš aliuminio, nerūdijančio arba cinkuoto plieno. |

