PROCURAL SL-1600
PROCURAL SL-1600 - sistema skirta išorinėms konstrukcijoms: stumdomos durys. Profilio konstrukcija leidžia pagaminti didelių gabaritų konstrukcijas, iki 8 varčių konstrukcijas. PONZIO SL-1600HI tinka konstrukcijoms, kurioms keliami aukšti šilumos izoliacijos reikalavimai. Stumdomos durys gali būti tiek automatinės, tiek mechaniškai atidaromos. Maksimalus varčios matmuo 1800x3200 mm. Galima konstrukcija su viena slankiojančia varčia ir viena fiksuota varčia.
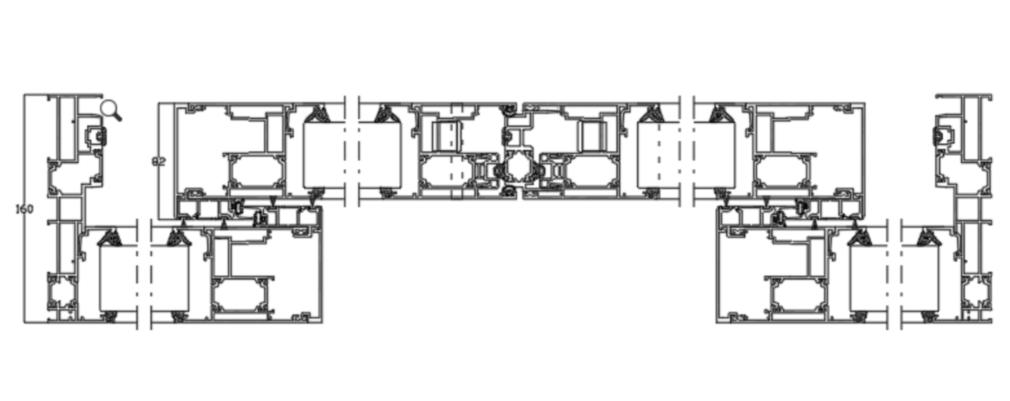
| Konstrukcijos |
2 bėgeliai/ 3 bėgeliai |
| Konstrukcijos gylis |
varčių gylis-67 mm, staktoms: dviejų bėgelių sistemai – 160 mm, trijų bėgelių sistemai – 247 mm |
| Užpildo/stiklo plotis |
iki 50 mm |
| Tarpinės |
sintetinis kaučiukas EPDM pagal DIN 7863 ir ISO 3302-1 E2 standartą |
| Užpildai |
įvairaus tipo ir storio stiklai ar stiklo paketai, nepermatomos kompozitinės panelės, polikarbonatas |
| Paviršiaus apdaila |
dažymas pagal RAL spalvų palete, anodavimas |
| Rėmo šilumos perdavimo koeficientas |
konstrukcijos su 3 stiklų paketu gali pasiekti iki Uw-0,97 W/m2K (šilumos koficientas priklauso nuo gaminio matmenų) |
