W-line 82
W-line 82
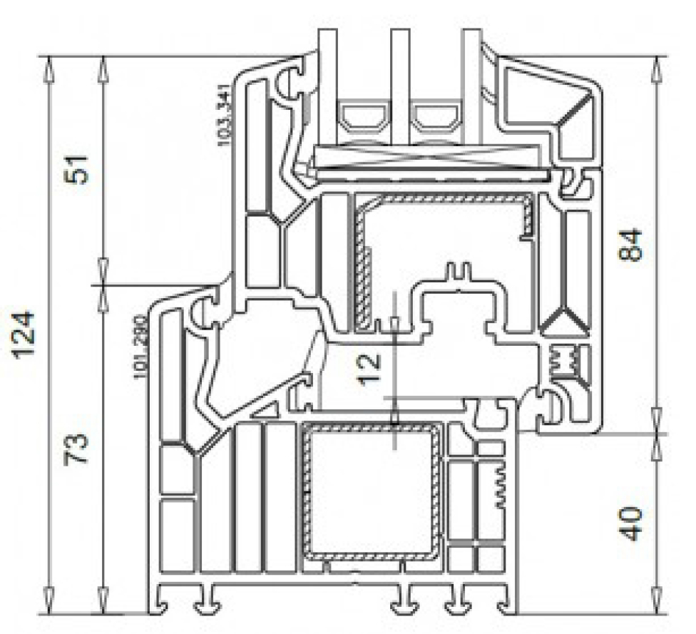
Veka-82. Tai puikus sprendimas, kurį dažniausiai renkasi privataus būsto klientai. 82 mm profilio gylis, mikro ventiliacija, 7 kameros rėme, 6 kameros varčioje bei 3 tarpinių sandarinimo sistema patikimai sulaiko šaltį, oro traukimą ir drėgmę. 3 stiklų paketas, kurio plotis - 48 mm (2 selektyviniai stiklai), o tarpai užpildyti argono dujomis. Visos išorinės profilio sienelės atitinka A klasę, yra ne mažesnio kaip 3 mm storio. Bendras staktos ir varčios rėmo plotis – 114 mm.
| Rėmas | 82 mm 7 kameros langų rėme 6 kameros varčioje |
| Stiklas (aliumis arba termo rėmelis stiklo paketo viduje) | 3 stikai 48 mm |
| Apkaustai | SIEGENIA |
| Šilumos perdavimo koeficientas | iki Uw=0.68 W/m2K |
| Garso izoliacija | 45 dB |
Stiklo paketai:
Matiniai, tonuoti, grūdinti, laminuoti, armuoti, saulės kontrolės, atspindintis, savaime nusiplaunantis stiklas, garsą slopinantis.
Spalvos: Standartinės spalvos (galimos ir nestandratinės PVC langų spalvos).
Galimi papildomi priedai:
• Orlaidės: Įfrezuotos į lango rėmą (AERECO). Orlaidės montuojamos stiklo paketo viršuje (Ducoton, Ducoklep, Ducoplus).
• Rankenėlės su užraktais: Secustik. Užraktas nuo vaikų.
• Dekoraciniai elementai: imitacinės juostelės ant stiklo paketo arba stiklo paketo viduje.
• Rankenėlės su užraktais: Secustik. Užraktas nuo vaikų.
• Dekoraciniai elementai: imitacinės juostelės ant stiklo paketo arba stiklo paketo viduje.








